
Fabulous traditional family home with spacious accommodation and beautiful private gardens positioned in a desirable location. Sandy Lane is deemed one of the most prestigious roads in Hucknall with easy access of the town centre.
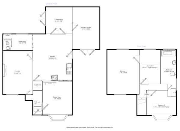
The property briefly comprising of entrance hall, lounge, separate bay fronted dining room along with a kitchen, conservatory, utility room with W.C. to the ground floor. To the first floor there are three double bedrooms with a four piece bathroom suite with claw footed bath. To the front of the property there is parking to the front of the house with an enclosed mature garden to the rear.
UPVC double glazed entrance door into:
HALLWAY
This welcoming space invites you into the rest of the property, with ceiling light point and radiator.
LOUNGE 10'4" x 11'9"
This room has a warm and cosy feel where you can relax in comfort. The feature of this room is the log burner, UPVC double glazed leaded window to the front, radiator, power points and ceiling light point.
DINING ROOM 10'11" x 15'4" excluding bay
This spacious room will provide a great environment for enjoyable dining experience. With UPVC double glazed leaded box bay window to the front, cast iron fire place, radiator, ceiling light point and power points.
DINING KITCHEN 13'8" max x 16'3" max
The hub of the house with a range of wall and base units, range style cooker, with ceiling spot lights and power points.
CONSERVATORY 9'2" X 9'5"
With UPVC double glazed windows and door leasing to the rear garden, tiled floor, power points and ceiling light point.
UTILITY ROOM 7'3" x 5'9"
With UPVC double glazed window to rear, power and ceiling light points.
DOWNSTAIRS W.C. 3'2" x 5'10"
With low flush W.C, wash hand basin and ceiling light point.
LANDING
Gives access to all first floor rooms.
BEDROOM ONE 11'1" x 15'7"
With UPVC double glazed leaded window to the front, UPVC double glazed window to the rear, two radiators, power points, ceiling light point.
BEDROOM TWO 10'4" x 10'11" excluding bay
With UPVC double glazed leaded box bay window to the front, radiator, ceiling light point and power points.
BEDROOM THREE 7'5" x 12'3" max
With UPVC double glazed window to the rear, power points, ceiling light point and radiator.
BATHROOM 5'9" x 12'
With two UPVC double glazed opaque leaded windows, four piece bathroom suite with claw footed bath with telephone mixer taps, pedestal wash hand basin, closed coupled W.C, separate shower cubicle, ceramic tiled floor, part wall tiling and ceiling light point.
OUTSIDE
Large delightful and mature gardens with a wealth of trees, shrubs, plants and flowers, substantial lawns and affording a high degree of privacy.
ADDITIONAL INFORMATION
Council Tax Band: C
Local Authority: Ashfield District Council
Primary School: Holgate Primary and Nursery School
Secondary School: The National C of E Academy
Stamp Duty on Asking Price on £325,000: £6,250.00 (this may change if you are a first-time buyer or you already own another property).
AGENTS NOTES
Whilst we endeavour to make our sales particulars accurate and reliable, if there is any point which is of particular importance to you, please contact the office and we will be pleased to check the information. Do so, particularly if contemplating travelling some distance to view the property.
All measurements are approximate and quoted in imperial and are for general guidance only and whilst every attempt has been made to ensure accuracy, they must not be relied on.
The fixtures, fittings or appliances referred to have not been tested and therefore no guarantee can be given that they are in working order.
Internal photographs are reproduced for general information and it must not be inferred that any item shown is included with the property.
MORTGAGE ADVICE
Arranging the right mortgage is just as important as selecting the right house. Need2View are happy to introduce clients to a completely and utterly independent mortgage advisor who can canvas the whole market place.
They can select the best and most appropriate mortgage tailored to suit each individual purchasers needs and requirements and relative to their own unique personal circumstances. Such advice can be accessed free of charge* and without any obligation. Your home is at risk if you do not keep up repayments on your mortgage or any other loans secured against it.
* Initial consultation is on a no fee basis although a fee may be charged for mortgage arrangement.
THINKING OF SELLING
It is important that a fair, accurate and representative market appraisal is given when thinking of selling and owners should obtain advice to take into account economic conditions, the size, standard, condition, location of a property, market conditions within the area and the likely demand for a particular type of property.
Need2View are happy to come and visit you at your convenience in or out of office hours, weekdays or weekends by appointment and will offer you the advice that you need to make an informed decision.
We offer a range of services and so will listen to what you want and need and tailor our services to suit your requirements. Our fees are flexible and will reflect the services you choose ensuring that you receive the best value for money. We use our expertise and experience to maximise the value of your home and can also offer help and assistance in connection with an on-going purchase, whether or not that property is being purchased through ourselves.
THINKING OF RENTING
Letting a property is not just simply a question of finding a tenant, it is about finding the right tenant which involves making in depth credit checks, enquiries and referencing to insure that prospective tenants are the best that they can be.
The secret of achieving the highest level of property management is to be actively involved in and manage the rental property, collecting rents is not enough. Strong and proactive management with regular contact with both tenants and landlords and frequent inspections with condition reports being provided on a regular basis will help to ensure that our landlords get the best possible service.
We have a hands-on and practical style of approach and aim at all times to act on our clients behalf, in their best interests and in accordance with their instructions protecting, maintaining and enhancing our clients’ investment.














