
This is a conveniently location modern and spacious ground floor apartment in an extremely popular location within walking distance of buses, trains, trams, Tesco, Iceland and Aldi, as well as being in close proximity to Hucknall town centre.
Entrance door into communal hallway with apartment entrance door leading:
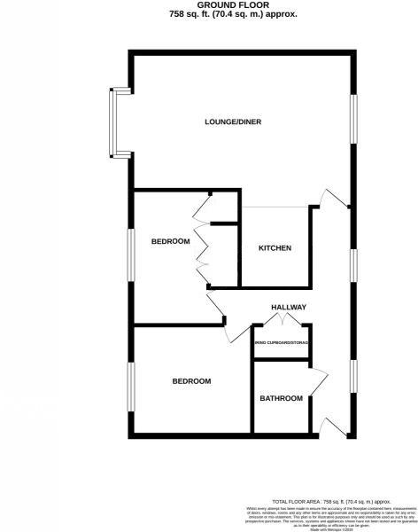
HALLWAY
With storage heater, ceiling light point and access to storage cupboard.
LOUNGE DINER 20'11" x 12'9"
With double glazed box bay window to front, two storage heaters, double glazed window to rear, power points, ceiling light point and open plan to kitchen area.
KITCHEN 9'3" x 6'7"
Fitted with a range of wall and base units, integrated fridge, integrated freezer, integrated dishwasher, integrated washing machine induction hob, integrated oven, one and a half bowl sink and drainer, ceiling light point and power points.
BEDROOM ONE 8'5" x 12'4"
With double glazed window to front, storage heater, built in wardrobes, ceiling light point and power points.
BEDROOM TWO 10'9" x 10'6"
With double glazed window to front, storage heater, ceiling light point and power points.
WETROOM
Refitted with low level WC, wash hand basin, electric shower, chrome towel rail radiator, shaver point and ceiling light point.
OUTSIDE
With communal garden areas and allocated parking.
ADDITIONAL INFORMATION
Council Tax Band: A Local Authority: Ashfield District Council
Primary School: Butler's Hill Infant and Nursery School Secondary School: The National CofE Academy
Stamp Duty on Asking Price: Nil (this may change if you already own another property).
Ground Rent: £50.00 payable per annum Management Charges: £75.00 payable per month
DIRECTIONS
On leaving our Hucknall Office, turn right onto the High Street, turn left at the traffic lights, right at the roundabout. Continue along Ashgate Road until you reach the mini round-about and turn left here on to Robin Bailey Way then turn left onto Pagett Close. The property can be easily identified by our ‘For Sale’ sign.
AGENTS NOTES
Whilst we endeavour to make our sales particulars accurate and reliable, if there is any point which is of particular importance to you, please contact the office and we will be pleased to check the information. Do so, particularly if contemplating travelling some distance to view the property.
All measurements are approximate and quoted in imperial and are for general guidance only and whilst every attempt has been made to ensure accuracy, they must not be relied on.
The fixtures, fittings or appliances referred to have not been tested and therefore no guarantee can be given that they are in working order. Internal photographs are reproduced for general information and it must not be inferred that any item shown is included with the property.
MORTGAGE ADVICE
Arranging the right mortgage is just as important as selecting the right house. Need2View are happy to introduce clients to a completely and utterly independent mortgage advisor who can canvas the whole market place.
They can select the best and most appropriate mortgage tailored to suit each individual purchasers needs and requirements and relative to their own unique personal circumstances. Such advice can be accessed free of charge* and without any obligation. Your home is at risk if you do not keep up repayments on your mortgage or any other loans secured against it.
* Initial consultation is on a no fee basis although a fee may be charged for mortgage arrangement.
THINKING OF SELLING
It is important that a fair, accurate and representative market appraisal is given when thinking of selling and owners should obtain advice to take into account economic conditions, the size, standard, condition, location of a property, market conditions within the area and the likely demand for a particular type of property.
Need2View are happy to come and visit you at your convenience in or out of office hours, weekdays or weekends by appointment and will offer you the advice that you need to make an informed decision.
We offer a range of services and so will listen to what you want and need and tailor our services to suit your requirements. Our fees are flexible and will reflect the services you choose ensuring that you receive the best value for money. We use our expertise and experience to maximise the value of your home and can also offer help and assistance in connection with an on-going purchase, whether or not that property is being purchased through ourselves.
THINKING OF RENTING
Letting a property is not just simply a question of finding a tenant, it is about finding the right tenant which involves making in depth credit checks, enquiries and referencing to insure that prospective tenants are the best that they can be.
The secret of achieving the highest level of property management is to be actively involved in and manage the rental property, collecting rents is not enough. Strong and proactive management with regular contact with both tenants and landlords and frequent inspections with condition reports being provided on a regular basis will help to ensure that our landlords get the best possible service.
We have a hands-on and practical style of approach and aim at all times to act on our clients behalf, in their best interests and in accordance with their instructions protecting, maintaining and enhancing our clients’ investment.






