
Looking to take your first step onto the property ladder or perhaps you are looking to purchase as an investment then this is the house for you. This two-bedroom end terrace house is situated in a convenient location within walking distance to the local amenities and within easy reach of Mansfield Town Centre and Junction 29 of the M1. The is deceptively spacious with two good sized bedrooms and a dining kitchen. There is a garden to the rear and the benefit of street parking.
To the front of the property there is a good-sized driveway with steps leading to UPVC double glazed front entrance door opening into:
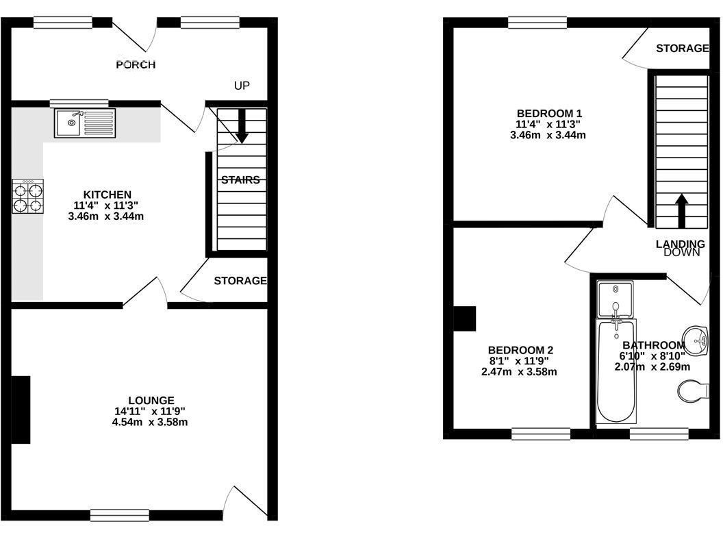
LOUNGE 12'11” x 11'9”
With UPVC double glazed window to the front, ceiling light point, radiator, TV aerial point and numerous power points.
DINING KITCHEN 11’4” x 11’3”
Offering plenty of storage and worktop space having been fitted with a range of wall and base units with roll top work surfaces with coordinated tiled surround. There is a stainless-steel sink with chrome mixer taps, four ring gas hob with integrated oven and grill and illuminated extractor over, space and plumbing for washing machine and space for fridge freezer. There is UPVC double glazed window to the rear, numerous power points, ceiling light point, stairs to first floor landing, access to storage cupboard and door opening into the rear porch.
REAR PORCH
With ceiling spot lights, power and UPVC double glazed windows and door opening onto the rear garden.
FIRST FLOOR LANDING
With ceiling light point and access to insulated loft space which has been fully boarded and benefits from a Velux roof window
BEDROOM ONE 11’4” x 11’3”
A spacious double bedroom with UPVC double glazed window to the rear, radiator, door to storage cupboard housing the boiler, ceiling light point and power points
BEDROOM TWO 11’9” x 8’1"
Another double with UPVC double glazed window to the front, radiator, power points and ceiling light point
BATHROOM 8’10” x 6’10”
A good-sized family bathroom with four-piece white suite comprising close coupled W.C, pedestal wash hand basin, panelled bath and separate shower enclosure with electric shower. There is partial wall tiling, ceiling light point, extractor and UPVC double glazed window to the front.
OUTSIDE
The rear is fully enclosed and offers raised patio and decking area areas with the addition of a useful garden shed.
ADDITIONAL INFORMATION
Council Tax Band: A
Local Authority: Bolsover District Council
Primary School: Park Infant Junior School and Model Village Primary School
Secondary School: Shirebrook Academy
Stamp Duty on Asking Price - Nil (This will change if you are purchasing as a second home/investment property).
AGENTS NOTES
Whilst we endeavour to make our sales particulars accurate and reliable, if there is any point which is of particular importance to you, please contact the office and we will be pleased to check the information. Do so, particularly if contemplating travelling some distance to view the property.
All measurements are approximate and quoted in imperial and are for general guidance only and whilst every attempt has been made to ensure accuracy, they must not be relied on.
The fixtures, fittings or appliances referred to have not been tested and therefore no guarantee can be given that they are in working order.
Internal photographs are reproduced for general information and it must not be inferred that any item shown is included with the property.
MORTGAGE ADVICE
Arranging the right mortgage is just as important as selecting the right house. Need2View are happy to introduce clients to a completely and utterly independent mortgage advisor who can canvas the whole market place.
They can select the best and most appropriate mortgage tailored to suit each individual purchaser’s needs and requirements and relative to their own unique personal circumstances. Such advice can be accessed free of charge* and without any obligation. Your home is at risk if you do not keep up repayments on your mortgage or any other loans secured against it.
* Initial consultation is on a no fee basis although a fee may be charged for mortgage arrangement.
THINKING OF SELLING
It is important that a fair, accurate and representative market appraisal is given when thinking of selling and owners should obtain advice to take into account economic conditions, the size, standard, condition, location of a property, market conditions within the area and the likely demand for a particular type of property.
Need2View are happy to come and visit you at your convenience in or out of office hours, weekdays or weekends by appointment and will offer you the advice that you need to make an informed decision.
We offer a range of services and so will listen to what you want and need and tailor our services to suit your requirements. Our fees are flexible and will reflect the services you choose ensuring that you receive the best value for money. We use our expertise and experience to maximise the value of your home and can also offer help and assistance in connection with an on-going purchase, whether or not that property is being purchased through ourselves.
THINKING OF RENTING
Letting a property is not just simply a question of finding a tenant, it is about finding the right tenant which involves making in depth credit checks, enquiries and referencing to insure that prospective tenants are the best that they can be.
The secret of achieving the highest level of property management is to be actively involved in and manage the rental property, collecting rents is not enough. Strong and proactive management with regular contact with both tenants and landlords and frequent inspections with condition reports being provided on a regular basis will help to ensure that our landlords get the best possible service.
We have a hands-on and practical style of approach and aim at all times to act on our clients behalf, in their best interests and in accordance with their instructions protecting, maintaining and enhancing our clients’ investment.



