
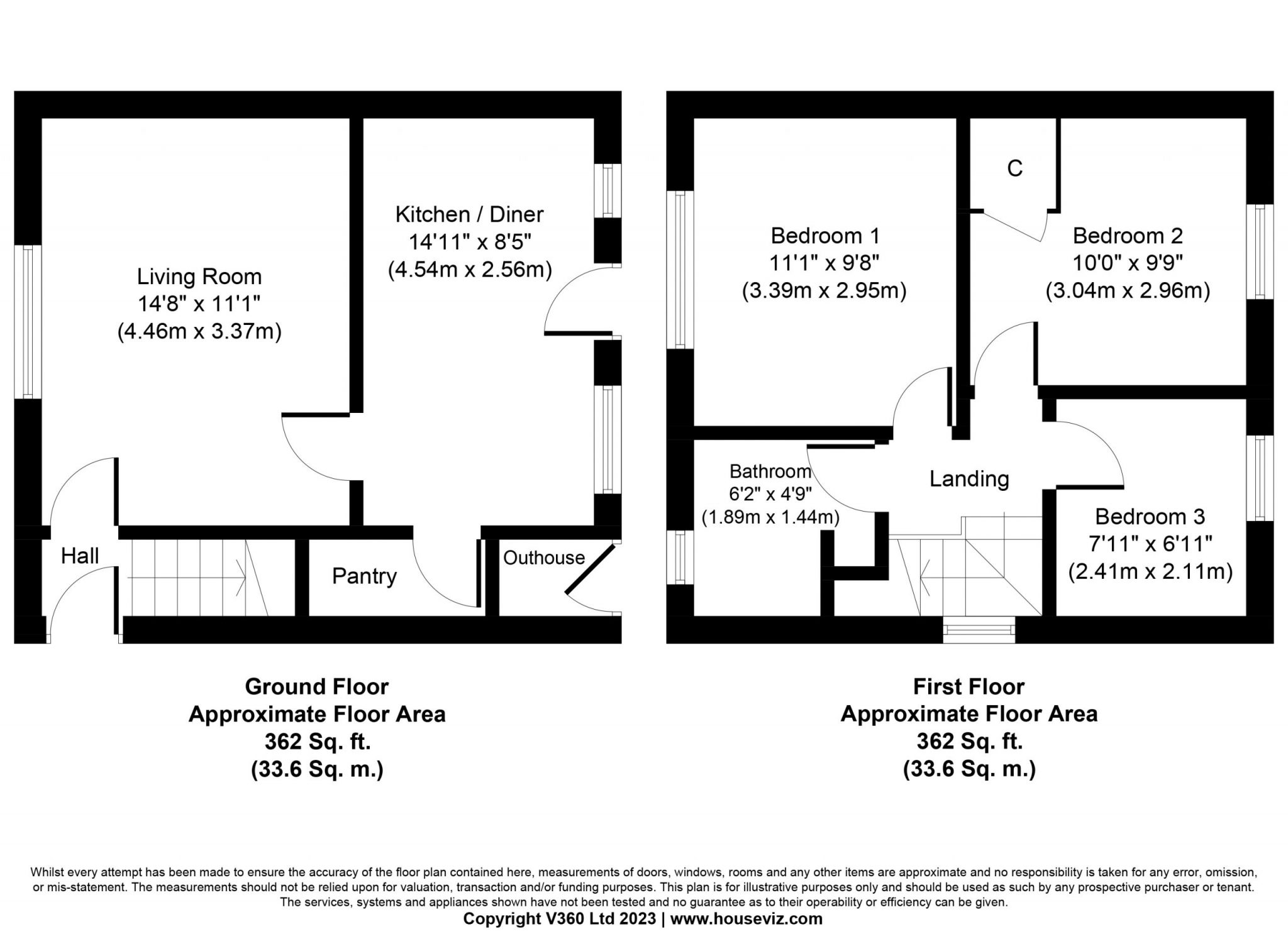
HALLWAY
With stairs to the first floor landing, access to the living room, power and ceiling light points.
LOUNGE 14’3” x 10’6”
A spacious family room with window to the front, feature fireplace with gas fire, radiator, power and ceiling light points.
KITCHEN/DINER 14’6” x 8”
Fitted with a range of wall and base units in a light wood effect finish with coordinating work surfaces, part wall tiling, space and plumbing for a fridge freezer, space and plumbing for a washing machine, space and fittings for an oven, single drainer sink with mixer taps, window to the rear, door to the rear, radiator, power and ceiling light points.
LANDING
With access to all the bedrooms and the bathroom, power and ceiling light points.
BEDROOM ONE 10’9” x 9’3”
With window to the front, radiator, power and ceiling light points.
BEDROOM TWO 9’7” x 9’3”
With window to the rear, radiator, power and ceiling light points.
BEDROOM THREE 7’6” x 6’6”
With window to the rear, radiator, power and ceiling light points.
BATHROOM
With opaque window to the front, wash hand basin, W.C. and shower, wet room floor, part tiled walls and ceiling light point.
OUTSIDE
To the rear of the property there is a small laid to lawn garden and a driveway running the length of the property with a garage at the end. To the rear of the property there is an easy to maintain garden with a pathway to the far end and a small laid to lawn section, all enclosed with fences.
ADDITIONAL INFORMATION
Local Council – Nottingham City Council
Council Tax Band – A
Primary School – Henry Whipple Primary School
Secondary School – Ellis Guilford School and Sports College
Stamp Duty on Asking Price: N/A (Additional costs may apply if being purchased as a second property)
AGENTS NOTES
Whilst we endeavour to make our sales particulars accurate and reliable, if there is any point which is of particular importance to you, please contact the office and we will be pleased to check the information. Do so, particularly if contemplating travelling some distance to view the property.
All measurements are approximate and quoted in imperial and are for general guidance only and whilst every attempt has been made to ensure accuracy, they must not be relied on.
The fixtures, fittings or appliances referred to have not been tested and therefore no guarantee can be given that they are in working order.
Internal photographs are reproduced for general information and it must not be inferred that any item shown is included with the property.
MORTGAGE ADVICE
Arranging the right mortgage is just as important as selecting the right house. Need2View are happy to introduce clients to a completely and utterly independent mortgage advisor who can canvas the whole marketplace.
They can select the best and most appropriate mortgage tailored to suit each individual purchaser's needs and requirements and relative to their own unique personal circumstances. Such advice can be accessed free of charge* and without any obligation. Your home is at risk if you do not keep up repayments on your mortgage or any other loans secured against it.
* Initial consultation is on a no fee basis although a fee may be charged for mortgage arrangement.
THINKING OF SELLING
It is important that a fair, accurate and representative market appraisal is given when thinking of selling and owners should obtain advice to take into account economic conditions, the size, standard, condition, location of a property, market conditions within the area and the likely demand for a particular type of property.
Need2View are happy to come and visit you at your convenience in or out of office hours, weekdays or weekends by appointment and will offer you the advice that you need to make an informed decision.
We offer a range of services and so will listen to what you want and need and tailor our services to suit your requirements. Our fees are flexible and will reflect the services you choose ensuring that you receive the best value for money. We use our expertise and experience to maximise the value of your home and can also offer help and assistance in connection with an on-going purchase, whether or not that property is being purchased through ourselves.
THINKING OF RENTING
Letting a property is not just simply a question of finding a tenant, it is about finding the right tenant which involves making in-depth credit checks, enquiries and referencing to ensure that prospective tenants are the best that they can be.
The secret of achieving the highest level of property management is to be actively involved in and manage the rental property, collecting rents is not enough. Strong and proactive management with regular contact with both tenants and landlords and frequent inspections with condition reports being provided on a regular basis will help to ensure that our landlords get the best possible service.
We have a hands-on and practical style of approach and aim at all times to act on our client’s behalf, in their best interests and in accordance with their instructions protecting, maintaining and enhancing our client's investment.








